• Save
Ventnor Spiritualist Church - Ventnor Spiritualist Church
  • Ventnor Spiritualist Church - Ventnor Spiritualist Church
  • Ventnor Spiritualist Church - Ventnor Spiritualist Church
Ventnor Spiritualist Church - Ventnor Spiritualist Church

£275,000

Guide price

Ventnor Spiritualist Church

    Description

    LOCATION
    Located in Victoria Street, close to the centre of Ventnor and within walking distance of various car parks. Ventnor benefits from being on the south facing slope of St Boniface Down and is almost totally sheltered from the north.

    The town has seen considerable recent investment, with a Tesco Express opening in the High Street and the creation of a small harbour on the picturesque Esplanade.

    The immediate population of around 6,000 residents is substantially boosted by the many visitors and locals alike wishing to enjoy the arts and fine dining culture which the town has become renowned for.

    DESCRIPTION
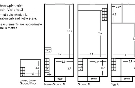
    Substantial building benefitting from fully glazed front elevation arranged over 4 floors. The lower, lower ground floor, lower ground floor and ground floor can all be separately accessed from the outside of the building, with the top floor being accessed via a staircase from the first floor.

    The gross internal area of the building is approx. 247m² (2658ft²) with a net internal area of the lower ground floor, ground floor and first floor being approx. 64m² (688ft²) per floor with the lower, lower ground floor running to approx. 15m² (161ft²).

    The building has been used for many years as a Spiritualist Church but could lend itself to various uses subject to planning, such as redevelopment to residential or various other commercial uses. Please see floor plan overleaf for further details.

    TERMS
    The property is to be offered online by Clive Emson Auctioneers on 7th May 2026.

    Auction Guide Price – £175,000 Plus (Plus fees).

    OUTGOINGS
    Rateable Value: TBC 2025/2026: 55.5p without small business relief. Interested parties should make their own enquiries of the Isle of Wight Council to confirm any rate liability or rate concession that may be applicable by telephoning Business Rates on 01983 821000

    VIEWING
    Strictly by appointment with sole agents. Call Lisa Mercer or Charlie Dickson on 01983 527727 or email commercial@hrdiw.co.uk

    Read more

    Location

    Ventnor Spiritualist Church

    Loading...

    Looking for mortgage advice or the best deal?
    Our team is here to assist you.

    Stamp Duty Calculator

    Monthly repayment
    You have to pay stamp duty:

    Affordability Calculator

    You could borrow between
    and
    • Save

    May also interest you...

    £685,000 Guide price
    £550,000 Guide price
    £475,000 Guide price