• Save
23 High Street - 23 High Street
  • 23 High Street - 23 High Street
23 High Street - 23 High Street

£265,000

Guide price

23 High Street

    Description

    LOCATION
    Located in Sandown High Street, in arguably one of the busiest points, being close to Pier Street and its links to the extensive sandy beaches that Sandown has to offer. It is also in close proximity to Boots the chemist, Sainsburys, and many other specialist retailers and restaurants.

    The premises benefits from on-street parking. Sandown forms part of the Sandown-Shanklin-Lake conurbation which wrap around Sandown Bay with the sandy beaches and leisure offer of the area, ensuring high numbers of visitors and tourists, boosting the local population of around 19,500.

    Sandown’s seafront is a magnet to tourists and locals alike, flocking to the area to enjoy the many facilities and amenities on offer. Besides its famous sandy beaches Sandown is home to The Isle of Wight Zoo, Dinosaur Isle, Sandham Gardens Activity Park plus Sandown Pier with its many rides and attractions.

    DESCRIPTION
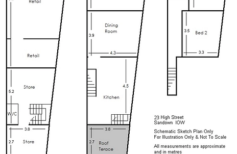
    Building arranged over three floors, with the ground floor retail space running to approximately 62m²( 667 ft²) including WC and staff facilities. It benefits from a frontage to Sandown High Street of approximately 5.4m (17.7 ft).

    There is a rear entrance which could make the flat completely separately accessed from the shop if required. The generous flat is arranged over two floors and runs to approximately 126m² (1,356ft²). It has been extensively redeveloped and redecorated over the last few years and presents in good order.

    There is potential to create a roof terrace in the future which would come off the kitchen. We have been advised that the flat could achieve £1,000 per week in peak the peak season as a holiday let.

    Our clients have advised us that the facade to the front is due to be repainted soon. Please see floorplan for further details

    TERMS
    Offers are invited "in the region of" £265,000 for the freehold property.

    OUTGOINGS
    Rateable Value: TBC

    2025/2026: 55.5p without small business relief. Interested parties should make their own enquiries of the Isle of Wight Council to confirm any rate liability or rate concession that may be applicable by telephoning Business Rates on 01983 821000.

    VIEWING
    Strictly by appointment with the agents. Call Lisa Mercer or Charlie Dickson on 01983 527727 or email commercial@hrdiw.co.uk

    Read more

    Location

    23 High Street

    Loading...

    Looking for mortgage advice or the best deal?
    Our team is here to assist you.

    Stamp Duty Calculator

    Monthly repayment
    You have to pay stamp duty:

    Affordability Calculator

    You could borrow between
    and
    • Save

    May also interest you...

    £385,000 Guide price
    £785,000 Guide price
    £395,000 Guide price