Commercial

Forest Road, Newport

Sold STC £795,000
or call 01983 527 727
Lisa Mercer
Commercial
commercial@hrdiw.co.uk

Summary

Opportunity to purchase a high visibility commercial unit.

Description

LOCATION
Situated on the main A3054 (Forest Road), on the edge of the Island's County Town of Newport, this highly visible and prominent unit offers easy accessibility and can be reached by circumnavigating the busy town centre and industrial estate.

The site is within approximately a 5 minute drive from the Town Centre and 15 minute drive of the Red Funnel ferry service in East Cowes and approximately 20 minutes of the Wightlink ferry service in Fishbourne.

Newport has a population circa 25,000 (2021 census) which will increase with the new residential development on Horsebridge Hill. The town itself offers a variety of shopping amenities, churches, doctors, hospital and transport links.
DESCRIPTION
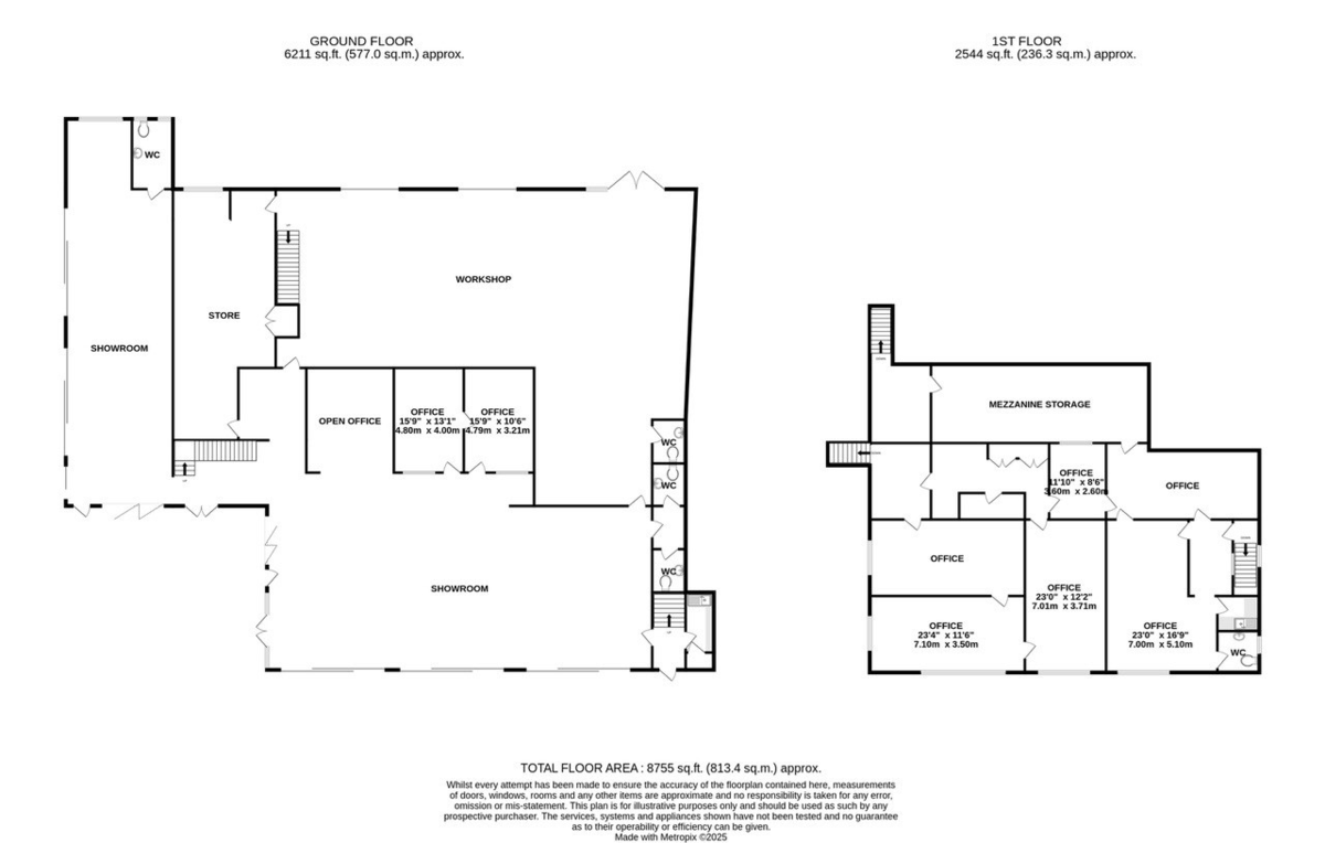
Offered for sale is a Unit 1 measuring approximately 8755 sq ft (813 sq m) overall plus parking and outside space.

The property is of metal frame construction and was originally constructed as an aeroplane hangar and has been modernised over the years by the previous owner occupiers. The property currently has planning permission for sale and display of motor vehicles however would suit a variety of different uses subject to gaining any necessary permissions. The vendor is currently submitting a change of use to B2, B8 and Class E. Due to the layout the property offer flexible accommodation and can very easily be subdivided if required.

Accommodation:
Ground Floor - Approximately 6211 sq ft (577 sqm)
Showroom with glazed frontage overlooking the front parking area and further showroom to the side. Offices, store, workshop to the rear with access to the yard. Staff facilities include 4 WCs and kitchen area.

First Floor - Approximately 2544 sq ft (236 sq m)
Various office space which could be subdivided/opened up if required. Further staff WC and kitchen area. Mezzanine storage space.

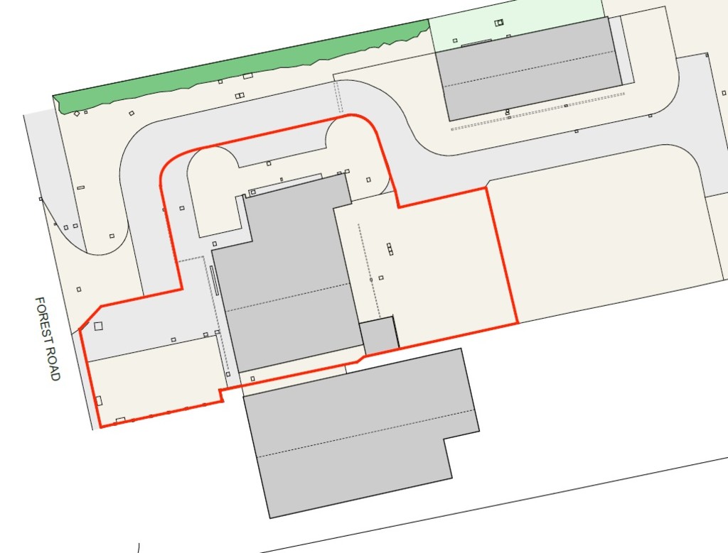
Outside
The property has a very prominent frontage and offers areas for signage on the main road (subject to any permissions). There is also ample parking, the amount will be dependant on configuration.
To the rear is a secure yard for storage/deliveries but could also be utilised for other purposes.
The front forecourt also offers an electric vehicle charging point.

SERVICES
We have been advised that the property benefits from mains electric, gas, water and drainage. Any enquiries should be made directly to the suppliers.
TERMS
Unit 1 is guided at £795,000 for the long leasehold (999 years).
OUTGOINGS
This unit is yet to be re-rated by the VOA.
SERVICE CHARGE
To be confirmed.
VIEWING
All viewings to be arranged via HRD Commercial 01983 527727 or Scotcher and Co 01983 822288.

Commercial

Forest Road, Newport

Sold STC £795,000
or call 01983 527 727
Lisa Mercer
Commercial
commercial@hrdiw.co.uk

How much is your property really worth?

Our accurate sales and rental valuations are based on the latest data market, local trends and expertise. Hose Rhodes Dickson will help you achieve the best price and timescales for your sale or let.

book a valuation
a static image
Forest Road, Newport
...
By clicking ‘Submit’ you agree to our terms & conditions

Sign in

Register