Commercial

Curraghmore , 22 Hope Road

For Sale £450,000
or call 01983 527 727
Lisa Mercer
Commercial
commercial@hrdiw.co.uk

Summary

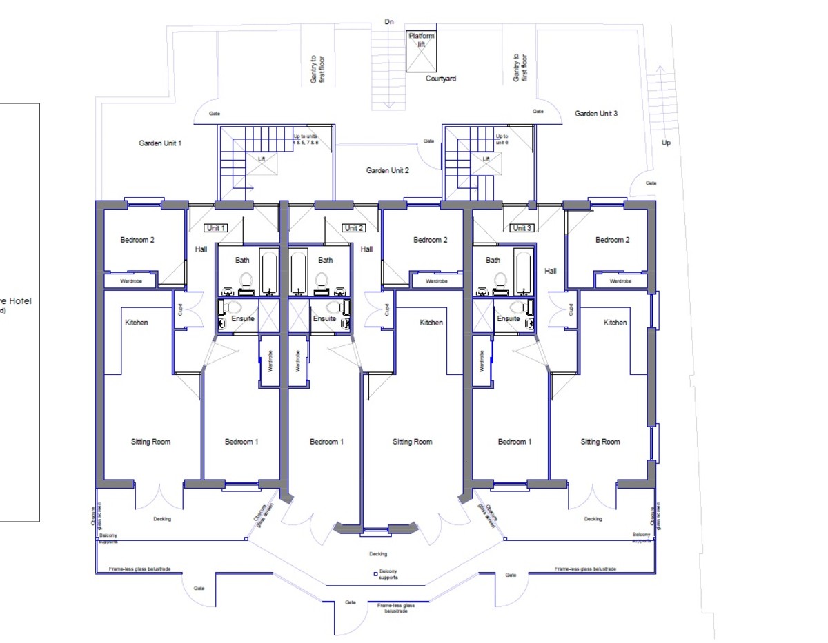
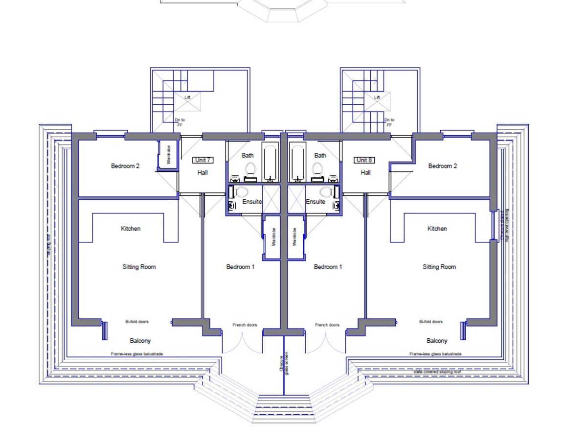
Development site situated in an elevated position on Hope Road giving extensive sea views. Outline planning for demolition of existing extensions to the Curraghmore Hotel and the construction of 8 two-bedroom apartments, all with sea views. Access to the apartments and parking will be from Beatrice Avenue.

Description

LOCATION
Development site next to the Curraghmore Hotel at 22 Hope Road, Shanklin in an elevated location.

Shanklin is a popular residential town and a well know tourist destination with a vibrant sea front. The site is close to the seafront and town centre. Local transport links are close by.

DESCRIPTION
Site for 8 two-bedroom apartments all with sea views situated in an elevated position on Hope Road.

The development will involve the demolition of existing extensions to the hotel. The original Victorian building will be retained and refurbished by the current owners.

The eight apartments range from 58 sq. metres (620 sq. ft) to 69 sq. metres (742 sq. ft) and will have panoramic views out to sea. Each apartment will have decking or a balcony to the front while the ground floor apartments will have gardens to the rear.

Access to the apartments and parking is from Beatrice Avenue to the rear of the site.

There is additional pedestrian access from Hope Road.

TERMS
Our client is asking £450,000 for this freehold development opportunity.
PLANNING
Outline planning has been passed. Please visit IW Planning beta.iow.gov.uk/planning Ref: 21/01941/OUT for further details.

VIEWING
All viewings to be arranged via HRD Commercial. Please contact 01983 527727.

Commercial

Curraghmore , 22 Hope Road

For Sale £450,000
or call 01983 527 727
Lisa Mercer
Commercial
commercial@hrdiw.co.uk

How much is your property really worth?

Our accurate sales and rental valuations are based on the latest data market, local trends and expertise. Hose Rhodes Dickson will help you achieve the best price and timescales for your sale or let.

book a valuation
a static image
Curraghmore , 22 Hope Road
...
By clicking ‘Submit’ you agree to our terms & conditions

Sign in

Register